New Warehouse Development in Swakopmund Industrial Area

N$2,965,000
Property Details

NOW SELLING: Brand-New Sectional Title Warehouses in Swakopmund’s New Industrial Area!

🚧 UNDER CONSTRUCTION — INVEST IN PHASE 1 NOW!

We are proud to present an exclusive opportunity to own premium warehouse space in Swakopmund’s booming “New” Industrial Area.

✅ A TOTAL OF 16 UNITS.

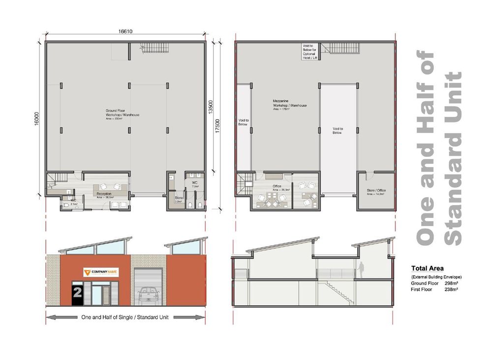
High-volume units.

Partly double-story with concrete mezzanine floors.

Ideal for logistics, manufacturing, or investment.

💼 STRUCTURE: Close Corporation Membership

All buyers become members in a Close Corporation (CC).

Enjoy simplified ownership and shared benefits.

⚡ Key Features:

3-Phase electricity.

Reception, kitchen, WC, and ablution facilities on the ground floor.

Upstairs offices and mezzanine storage areas.

High-spec finishes and durable construction.

🔒 Safe & Secure Investment:

All funds will be invested in interest-bearing trust accounts managed by a reputable law firm, ensuring transparency and peace of mind.

PHASE 1 NOW AVAILABLE — LIMITED UNITS ON SPECIAL:

5 Units Available for CASH BUYERS ONLY

(FULL PRICE UP FRONT | No instalments)

Unit Type: Size (m2):Price (N$):

Front-facing Unit 333 m2 3,050,000.00

Standard Unit 333 m2 2,965,000.00

Standard Unit 333 m2 2,965,000.00

Standard Unit 333 m2 2,965,000.00

Standard Unit 333 m2 2,965,000.00

Construction will be completed in phases. Payment milestones:

10% upon signing Deed of Sale.

30% at construction commencement.

30% at first-floor height.

25% at roof height.

5% upon completion.

📍 PRIME LOCATION

Situated in Swakopmund’s fast-growing industrial hub, these units offer excellent access, visibility, and future value.

📞 Interested in owning a unit?

Contact us today to secure your warehouse before they’re all sold!

Property Features
Property Type
Industrial
Floor Size
6,428m²
Land Size
333m²
Location
Make an enquiry
Interested in this property? Please fill in your details below, and we will contact you as soon as possible.
By clicking on "submit" you agree to our privacy policy.
Property Alerts
Receive email alerts for properties matching your criteria.