4 Industrial Properties for sale in Swakopmund

N$ 2,965,000
Industrial for sale in Swakopmund Ext 10
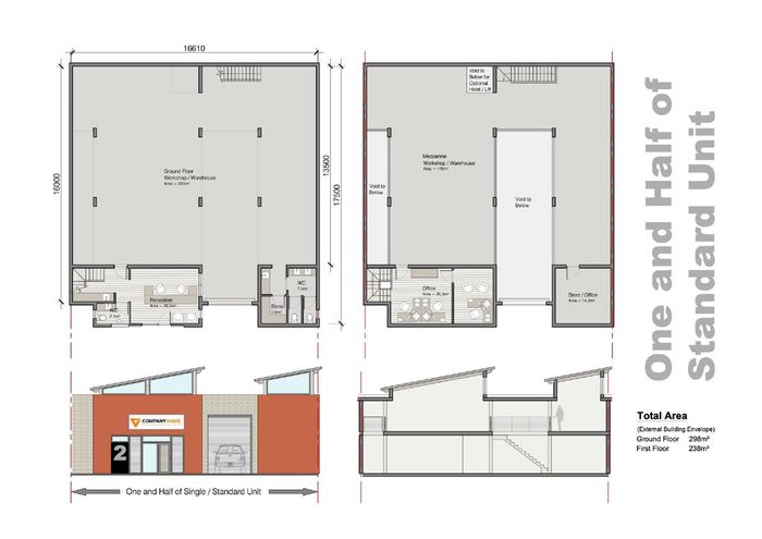
New Warehouse Development In Swakopmund Industrial Area
Grow your business in Swakopmund’s fast-growing industrial hub, with high-volume sectional-title warehouses featuring concrete mezzanines, upstairs offices and 3-phase power — limited phase 1 units.
6,428m²
333m²
N$ 4,725,000
Industrial for sale in Industrial
Workshop For Sale In The Industrial Area, Swakopmund
Grow your business in a prime, high-visibility location with a street-access reception, client waiting area and display cupboards; upper-floor main office, dual kitchenettes, three W/Cs and dedicated generator with switchover.
505m²
N$ 5,850,000
Industrial for sale in Industrial
Warehouse For Sale In Swakopmund Industrial
Strategically located with excellent road access, this 512 m² warehouse features a large roller door for easy loading, dedicated office, kitchenette and two restrooms — versatile for business.
512m²
N$ 9,400,000
Industrial for sale in Swakopmund Industrial
Corner Warehouse With Offices For Sale In Industrial Area
Prominent corner commercial property with secure grounds, warehouse and roller door, entertainment balcony with built-in BBQ, wash bay, 15 parking bays, 2 loading bays, 3-phase power — 854 m².
854m²
1,030m²
Ready to sell in Swakopmund?
Get a market estimate on your property from one of our qualified real estate professionals.
Get Swakopmund email alerts
Sign up and get notified as soon as the new industrial properties becomes available in this area.